Beachside, De Silva Residence este un complex residential situat in cea mai buna locatie din Mamaia, Bulevardul Mamaia/ Loft,/Nuba/Fratelli avand la Vest lacul Siutghiol iar la Est Marea Neagra. Datorita acestei orientari, apartamentele au vedere totala sau partiala la mare sau lac.
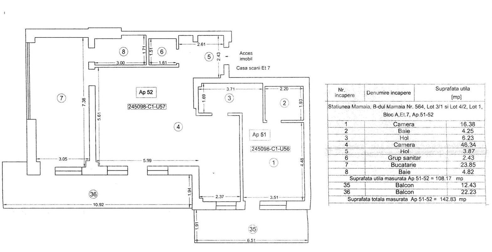
Apartamentul este desfasurat pe o suprafata totala de 165 mp avand o terasa de 35 mp.
Format din trei camere (living cu bucatarie deschisa, doua dormitoare cu bai propri, o baie de serviciu si hol), apartamentul ofera o priveliste spectaculoasa.
Se vinde mobilat si utilat, beneficiind de mobila si aparatura de cea mai buna calitate.
Ansamblul Beach Side este finalizat, astfel ca va puteti bucura de apartamentul dumneavoastra de pe malul marii imediat.
210.000 € +TVA












