Apartament mobilat si utilat pe malul marii aflat in complex rezidential, Casa Del Mar, este situat in cea mai buna locatie din Mamaia Nord, Bulevardul Mamaia, in apropiere de cluburi, avand la Vest lacul Siutghiol iar la Est marea Neagra.
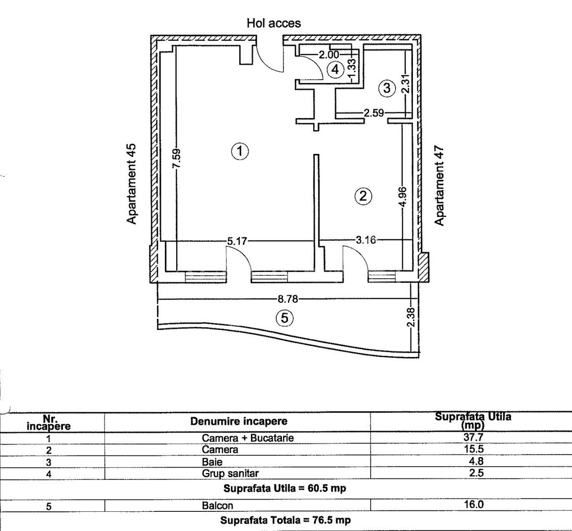
Apartamentul este desfasurat pe o suprafata de 90 mp avand o terasa de 16 mp aflata pe toata suprafata apartamentului.
Format din doua camere (living cu bucatarie deschisa cu suprafata de 38 mp, folosit și ca dormitor, dormitor matrimonial cu baie proprie insumand o suprafata de 21 mp, plus o baie de serviciu), apartamentul ofera o priveliste spectaculoasa, avand vederi atât spre marea Neagra, cat si spre lac.
Apartamentul se preda viitorului proprietar cu toate dotarile din prezentare!
Casa del Mar, De Silva Residences ofera apartamente cu vedere catre mare, plaja, în cel mai aerisit ansamblu rezidenţial din Mamaia Nord, langa cele mai in voga cluburi.
Aflat în cea mai dorită zona din Mamaia Nord, chiar lângă plajă, Casa del Mar este visul împlinit al celor care îşi doresc să asculte valurile mării, să privească răsăritul soarelui şi să simtă briza marii.
Cel mai aerisit ansamblu rezidenţial (distanţă între imobile de 40 m).












